Главная
Портфолио
Коммерческие проекты
Портфолио
Дом 320 м² в Парижском стиле для семьи
Инвестиционная квартира с премиум ремонтом 60 м²
Уютный дом для семьи в Подмосковье 172 м²
Современная квартира под сдачу в аренду 68 м²
Стильный дом из бревна 129 м² для отдыха
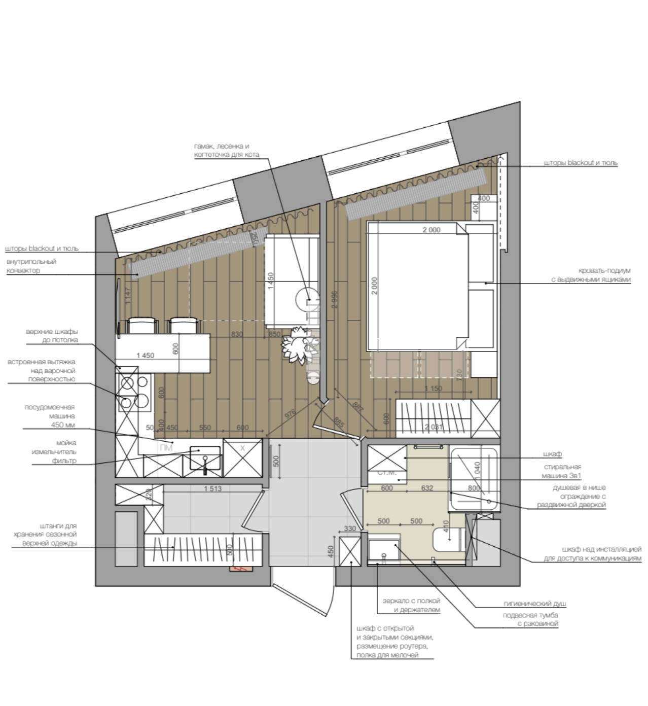
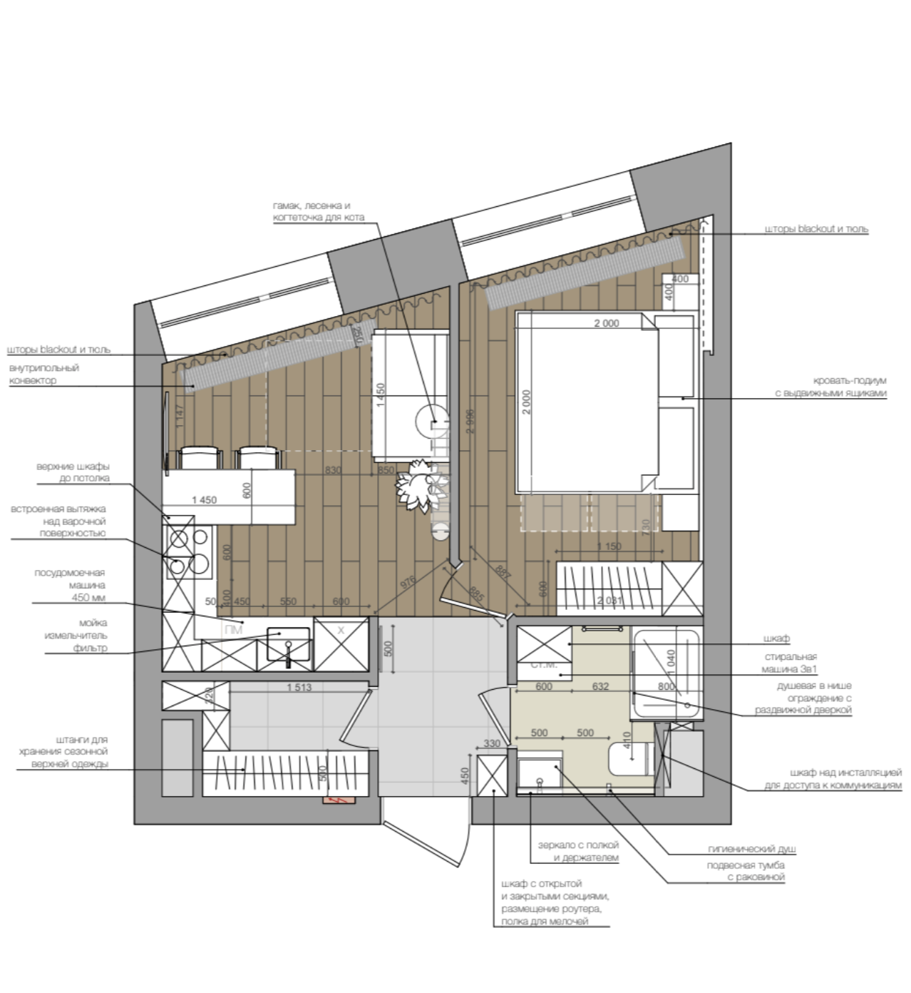
Квартира-студия для стильной девушки 27 м²
Неоклассика — квартира студия 25 м² для девушки
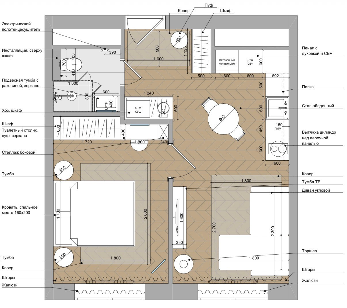
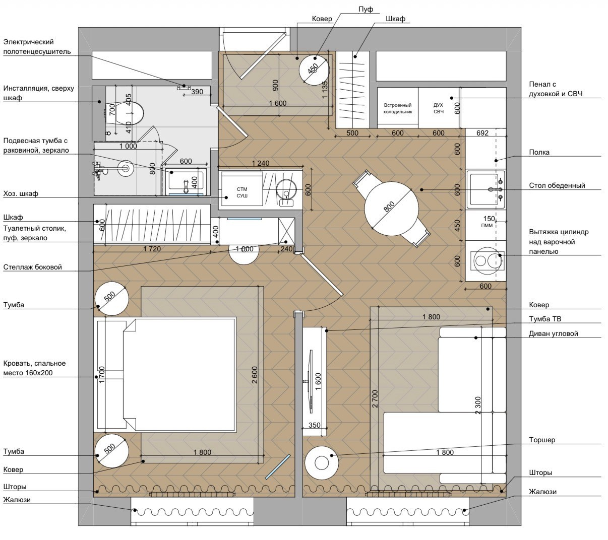
Светлая трёшка 50 м² для молодой семьи
Дом в нейтральных оттенках 135 м²
Квартира однокомнатная 32 м² для пары
Трёшка 74 м² в Эко Стиле со сложной планировкой